一、反井钻机工作条件及工作原理
1、反井钻机工作条件
反井钻机钻竖井或斜井施工是在上、下平洞开挖和支护完成后进行的,有些项目是在露天的环境下进行的。钻井工作机械化程度高,安全可靠,没有传统爆破开挖的各类风险。
2、反井钻机施工过程
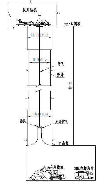
反井钻机钻竖井或斜井施工过程是:用导孔钻头先从上平洞或露天地面自上而下钻一个直径250mm左右的导孔,在下平洞贯通后连接扩孔钻头,然后,反提扩孔钻头自下而上扩孔至钻机基础顶面,形成导井即工作完成。导井可用于通风、排水、溜渣以及再次扩挖的溜渣通道等。
二、反井钻机部简介
反井钻机部成立于2009年6月初,公司领导层根据生产任务情况和考察研究,决定由大岗山项目部所属的排风竖井反井钻机项目开始组建,独立于大岗山项目部,由公司直接管理。2009年6月30日,第一台反井钻机抵达大岗山水电站施工现场,标志着公司反井钻机部正式投入运营。
反井钻机部自成立以来,相继完成了大岗山水电站、锦屏二级水电站、白岩滩水库枢纽、兰渝铁路肖家梁隧道、关州水电站、双欣集团正丰煤矿、顺河水电站、三道湾水电站、四川金元电站、云南红山铁矿、会宝岭铁矿、海矿石碌项目、东谷河国如水电站、新疆哈图金矿等数十项工程中的排风竖井、出线竖井、压力管道斜井、溜渣井、通风井、抽(排)水井、逃生井、溜矿井等近百个各类反井钻机项目施工,可谓是身经百战,同时培养了一批经验丰富的管理人员和技术操作人员。
目前公司反井钻机部下属6个钻井队,每个钻井队按队长、机长、副机长、技工、普工等岗位要求配备相应人员,并制定了相应的岗位晋升考核机制,为每个员工的聪明才智和主观能动性提供充分的发展和发挥空间。
三、反井钻机施工流程图
四、反井钻机施工示意图

五、反井钻机工艺特点
(1)采用滚刀机械破岩,对围岩破坏小,井壁光滑,有利于扩挖溜渣、通风、排水。钻机可以钻凿不同角度的斜孔,范围从60-90度之内可以调节;
(2)采用机械化作业,工人工作环境和安全条件好、劳动强度低;
(3)体积小、重量轻,运输方便;
(4)采用全液压驱动,结构紧凑,重量轻,功率省,操作平稳、简单,便于精确测控。
(5)主机液压系统简单可靠,操作容易,大部分液压元件及密封件与井下综采设备液压元件通用,维修更换方便。油泵、马达、操控阀等液压系统元件绝大部分为国外技术中国制造的名牌产品,寿命长、可靠性高;
(6)钻主机安装运输以及调整全部机械化,简单省力,迅速安全,不需辅助设备;
(7)钻杆丝扣采用API国际通用标准,安全可靠,互换性好,寿命长,装卸钻具工艺合理,辅助时间短,钻机配有开孔钻杆和特制的稳定钻杆,能有效地防止井孔偏斜;
(8)钻机是防爆型的,适用于各级瓦斯矿;
(9)扩孔钻头有喷水装置,可以降尘及冷却刀具;
(10)钻机效率高,成井速度快,质量好。
反井钻机,天井钻机,就找vsport体育
咨询电话:13880442888【官总】
传真电话:028-86385288
官方微信:s13880442888










